[page.php]で【固定ページ】を表示中

つぼみのいえ | 長野であなたに「一番似合う」暮らしを創る工務店【SAATHAUS】がプロデュースする、暮らしがふくらむ、規格住宅

建売の手軽さに、注文住宅の安心と木の温もりを。

ザートハウスの規格住宅
つぼみのいえ。

つぼみのいえ メインビジュアル
      

無駄を削ぎ落した、賢い選択。

私たちがご提案するのは、安さのために何かを我慢する家ではありません。建物の形をシンプルにし、工数や材料の無駄を省き、規格化によって仕入れコストを抑える。その「合理化」によって注文住宅のクオリティを手の届く価格で実現しました。

間取りは「プロの最適解」から選ぶ。

ゼロから図面を引く設計コストや打ち合わせ時間を削減。建築のプロが家事動線や暮らしやすさを徹底的に考え抜いた「無駄のない間取り」をあらかじめご用意しているため、住んでからの失敗もありません

建物の形をシンプルに。

外観の凹凸をなくすことで、初期の材料費や施工の手間を大幅にカットしています。さらに、屋根や外壁がシンプルな造りであることは、将来の塗り替え時にかかる足場代や施工の手間を削減することにも繋がり、建てた後のメンテナンス費用も最小限に抑えられます。

設備は実用的でシンプルに。

使わない機能が多い高価な設備ではなく、日々の使い勝手が良く、将来のメンテナンスや交換がしやすい製品を標準採用しています。それらを規格化して仕入れることで、コストを抑えることに成功しました。

計算された生活動線から始まる、心豊かな「新しい日常」。

「つぼみのいえ」は、ただ住むだけのハコではありません。プロが計算し尽くした無駄のない生活動線をベースに、ご家族が自由に「自分たちらしさ」を描ける余白を残した特別な空間です。木の温もりに包まれた快適な住まいが、心豊かな新しい生活のきっかけを作ります。

拡大表示
Sub 1
Sub 2
Sub 3
拡大表示
>

最高水準の安心と、最適な心地よさ。

家族を守る耐震性は「最高水準」、断熱性能はコストとのバランスを見極めた「最適解」、毎日触れる部分には「愛着」が深まる素材を厳選し、安心と心地よさを手の届く価格で両立した賢い標準仕様です。

SAATHAUS Standard Specification

注目ポイント

01
玄関ドア電子キー

荷物で両手が塞がっていても、ワンタッチで解錠可能。毎日の出入りをスムーズにする便利な電子キーです。

02
許容応力度計算による「耐震等級3」

柱や壁にかかる力を緻密に計算する「許容応力度計算」により、最高の耐震等級3を標準採用。消防署や警察署と同じ強さで家族の命と暮らしをしっかり守ります。

03
杉無垢フローリング

素足に心地よく冬も暖かい杉無垢フローリング。傷がつきやすい一面はありますが、それも家族の思い出の証。時が経つほどに味わいと愛着が深まる、体にやさしい素材です。

04
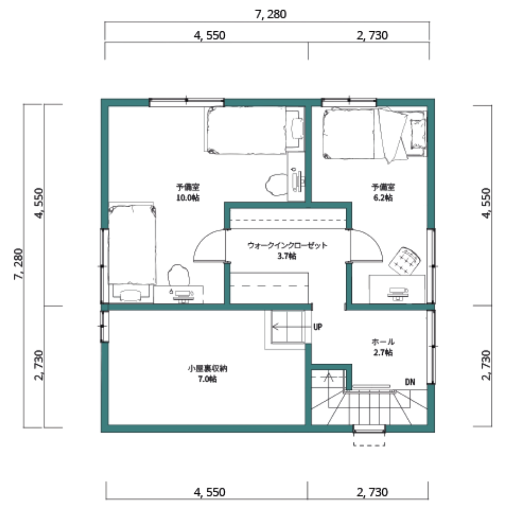
屋根断熱による空間の有効活用

屋根断熱を採用し、夏の厳しい暑さや冬の寒さをしっかり遮断します。デッドスペースになりがちな屋根裏も一年中快適な温度に保たれるため、ロフトや大容量の小屋裏収納として空間を無駄なく有効活用できます

選べるスタンダードプラン

ライフスタイルに合わせた最適な住まいをご提案します。

つぼみのいえL(2階建て)3~5人

  • ● 約32坪 / 家族の成長に合わせる家
  • ● 1F・2Fともにゆとりの広さ
COMING SOON

準備中

つぼみのいえM(平屋)2~3人

  • ● 約30坪 / 広々LDK
  • ● 吹き抜け・収納充実

つぼみS(平屋+ロフト)2人~3人

  • ● 約22坪/大容量ロフト収納付き
  • ● 無駄のない2LDK

よくあるご質問

家づくりに関する疑問や不安にお答えします。

基本となる枠組みは決まっていますが、それはプロが計算した無駄のない生活動線が出来上がっているということです。家具の配置やインテリアなどで、お客様らしさを演出するアイデアをしっかりアドバイスいたします。

品質を落としているわけではありません。最大の理由は「建物の形状をシンプルにしたこと」です。無駄のない形状にすることで材料費や施工の手間をカットしつつ、構造的に安定し地震や台風にも強い設計となっています。

建物構造がシンプルで柱が少ないため、将来の間仕切り変更などにも柔軟に対応しやすいメリットがあります。10年後、20年後の変化を見据えた活用方法をご提案します。

決してそんなことはありません。信頼できる国内一流メーカーの設備を厳選。規格化による大量仕入れにより、個別に選ぶよりも質の高いものを低コストでご提供できるのが強みです。

はい、可能です。規格住宅のコストメリットを活かしつつ、お客様が本当にこだわりたい部分にだけ予算をかける「メリハリのある家づくり」が人気です。満足度が高まる方法を一緒に考えます。

ベースの打ち合わせはスムーズですが、決して適当に終わらせるわけではありません。お客様の不安を一つひとつ解消し、心からご納得いただけるまで丁寧にお話しさせていただきます。

むしろ、建物の形がシンプルで凹凸が少ないため、将来の塗り替えなどのメンテナンスコストを抑えやすいというメリットがあります。地元に根ざしたサポート体制も整えています。

お引き渡しをしてからが本当のお付き合いです。規格住宅であっても、注文住宅と同等の保証と定期点検をいたします。地域密着の山二ハウジングですので、万が一の際も迅速に駆けつけます。

基本プランにも機能的な収納を備えていますが、図面を見ながら「どこに何をしまうか」を具体的にシミュレーションします。必要に応じて、無駄のない家具配置などもアドバイスいたします。

はい、可能です。「つぼみのいえ」は高い省エネ性能と耐震性能を標準で満たしているため、住宅ローン控除の最大活用や、各種補助金の対象となります。資金計画についても専門スタッフがサポートします。

暮らしがふくらむ、
「つぼみのいえ」

まずは資料請求、またはモデルハウスで体感してください。

Page Top